※【殿堂入り】記事について
渋井不動産は4月29日から5/6日まで休業しております。その間、渋井不動産は会社としての機能が一時的に停止いたしますが、ブログは毎日更新いたします。この期間中掲載される記事は、渋井スタッフが選んだ「この記事は殿堂入りでいいんじゃない?」というもの。過去の記事なので物件の空室とは関係なく、ただただ自分たちが良いと思う記事を日替わりでアップしていきますので、皆様の休暇のお供としてお楽しみください。
それではどうぞ。
これ以上無い、超高級リノベーション?
こんにちは。渋井不動産売買担当のイパサです。皆様大型GWは満喫されましたでしょうか。GW終わりかけ、渋井不動産は仕事再開な本日は、大阪市浪速区幸町二丁目「ほぼ堀江」の異名を持つこの地から、売買物件のご紹介です。
Z’class Sakuragawa
これ以上無い、超高級リノベーション
やたら強気なキャッチコピーの本物件、ちょうどオープンハウスが開催されていたので、こちらも強気な姿勢で攻めて行きたいと思います。オラー!!!
(※オープンハウスの詳細は、予め渋井不動産までお問い合わせください。)
嘘みたいな築38年の廊下
嘘でしょ。嘘といってちょうだい。内縁の妻が、そう呟いてしまうのも仕方アリません。
玄関を開けた瞬間に「このリノベ、レベルが違うわ。他の追随を許さないわ。きっと築3年の間違いよ。早く籍を入れましょうよ。」そんな心の声が聞こえてくる、リノベーション物件としては珍しいレベルのキレイめ空間です。
そう、何を隠そうこの物件は1981年築、元号で言うところの昭和築。令和元年の今日に於いては、はるか昔に建築された「THE CHIKUHURU」な建物なのです。
築38年を迎える部屋の床は全面タイル張り、今年同じく築38年を迎える妻(内縁)の顔面は全面厚塗り。そんな感じです。
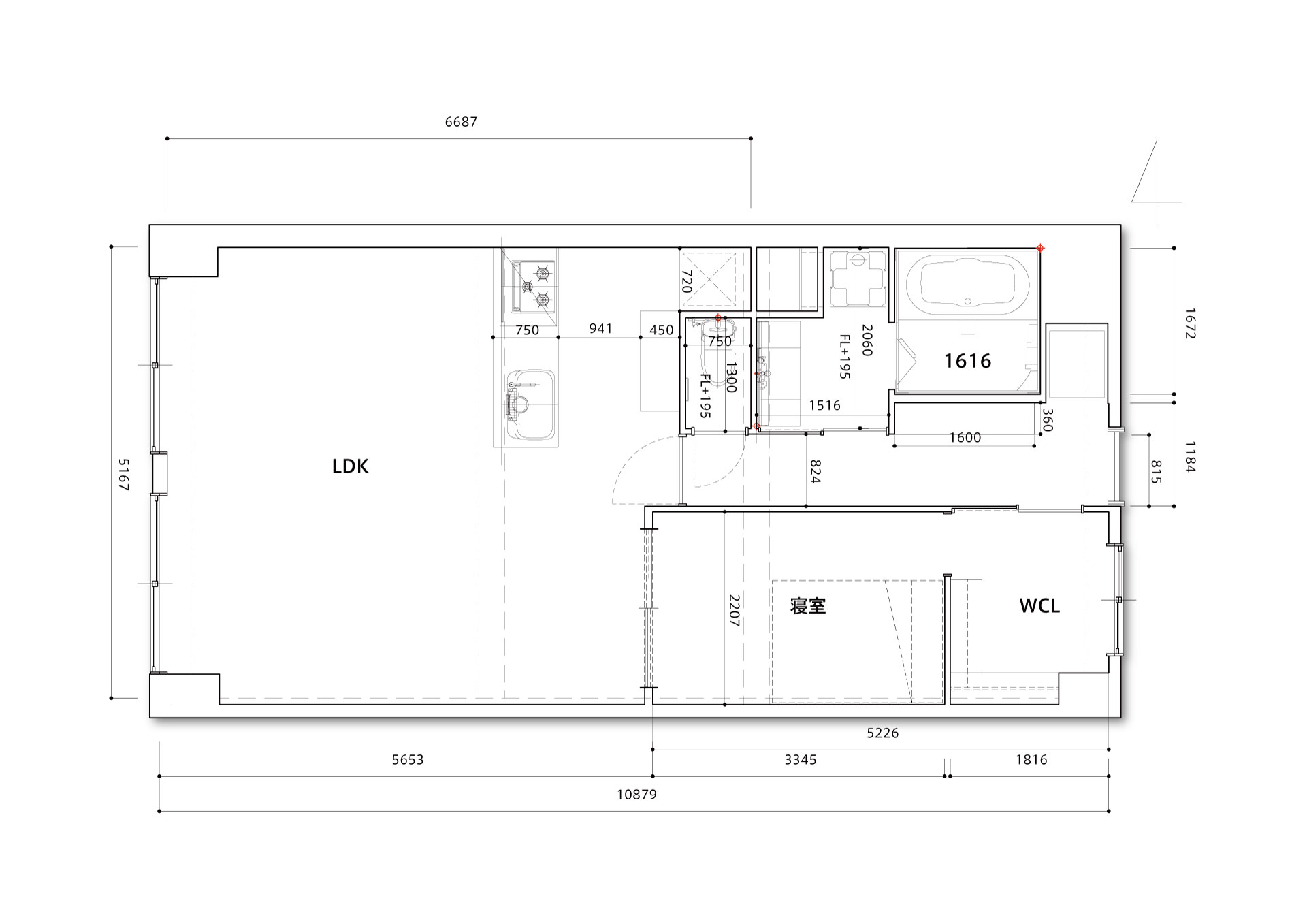
家具設置済みのリビングは暮らしのイメージが湧きやすく、その広さは約20帖と申し分ない広さ。
せっかくなので今日は、僕がイメージした暮らしを舞台に本物件の見どころをお伝えしたいと思います。
(家具協力:ONOE FURNITURE 堀江本店)
聞こえないんだよ声が。こんなに広いリビングで、そんなハスキーボイスで喋られても聞こえるわけないだろう。もっと声を張りなさい。この床の全面に張られた高級タイルと同じくらい、声を張りなさい。
なんでそんなに強烈な設定なんだよ。気張って暑いのは君だけだろ。あと用を足す時に「オラー!!!」って、うるさいんだよ。普段からそれぐらい声張れよ。もういい、俺は1616サイズの大型浴室に内蔵された大型テレビを見ながら食事をするから、徒歩3分の関西スーパーで惣菜でも買ってきてくれ。
(くそぅ。また喧嘩になっちまった。月々10万円以下で住める高級リノベーション物件がめちゃくちゃ財布に優しいように、俺もアイツには優しくならないとな。あとでちゃんと謝ろう。しかしデカイ洗面台だな、収納も大きいし器も大きい。俺も洗面台と同じく器の大きい男にならねば。)
おーい、上がったぞー。さっきは悪かったな、仲直りしよう。
— 築38年の妻
ありがとう。あたしもシャワー浴びてくるから、先にムーディなエロスが漂うベッドルームに向かってちょうだい。リビングからは黒いガラスで寝室は見えない仕様になってるけど、ベッドルームの天井にもビルトインエアコンが内蔵されているわ。温度はあなたの好きな設定でいいから、スタンバイしてちょうだい。
まとめ
Z’class Sakuragawa
これ以上無い、超高級リノベーション
★月々10万円以下で住める
★62.53㎡の1SLDKは、リビングが広い
★玄関からリビングまで、全面タイル張り
★設備がタワーマンション級
★食器洗い乾燥機付きのシステムキッチン
★リビングと寝室の天井にビルトインエアコン搭載
★洗面台がワイドスパン
★1616サイズのビッグバスは、大型テレビ内蔵
★ベッドルームはムーディなエロスが漂う
★廊下と寝室の間にウォークスルークローゼット
★桜川駅徒歩3分
★関西スーパー徒歩3分
★単身~事実婚~DINKSにおすすめ
★すぐに仲直りできる
ご清聴誠にありがとうございました
















